ИМОТИ
ДВУСТАЕН АПАРТАМЕНТ В НОВ ЖИЛИЩЕН КОМПЛЕКС В КВ.ТРОШЕВО
Тип имот: Апартамент -> Две стаи
Код на обявата: 21588
Населено място: Градове / Варна / Трошево
Квадратура: 70 м²
130 000 EUR
Продава:
| Обзавеждане: | Необзаведен |
| Строителство: | Тухлa, ново строителство |
| Асансьор: | Да |
| Етаж: | 2/16 |
Описание:
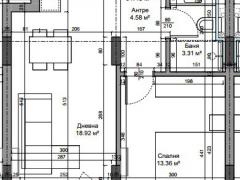
Предлагаме на вниманието Ви уютен двустаен апартамент с южно изложение, разположен на втори етаж в новостроящият се жилищен комплекс - Либра.
Жилището се намира на втори етаж от общо 16 и разполага с площ от 71,11 кв.м (чиста жилищна площ 61,43) върху, която функционално са разпределени дневна с кухня и трапезария, коридор, санитарен възел, спалня и тераса.
Разположена на комуникативно и предпочитано място, сградата комбинира модерна архитектура и качествено строителство.
Подземен паркинг и контрол на достъпа за сигурност и удобство.
Зелени площи и детски площадки за отдих и игри.
Елегантно проектирани общи части, които създават усещане за класа и уют.
Лесен достъп до ключови пътни артерии и градски транспорт.
Близост до училища, магазини, здравни заведения и развлекателни центрове.
Гъвкави схеми на плащане.
За повече информация и огледи не се колебайте да ни потърсите и цитирате код: 21588
Контакти:

БРОКЕР НОРА СТОИМЕНОВА
тел. +35952602118
тел. +35952611010
Мобилен +359884360297
АКЦЕНТ ИНВЕСТ
бул. Мария Луиза 39, Варна - 9000
тел.: +359 52 61 10 10
Факс: +359 52 60 21 18
e-mail: office@accentinvest.com















