ИМОТИ
ДВА ДВУСТАЙНИ АПАРТАМЕНТА В СГРАДА ЛИБРА В РАЙОНА НА ТРОШЕВО
Тип имот: Апартамент -> Две стаи
Код на обявата: 21672
Населено място: Градове / Варна / Трошево
Квадратура: от 68 до 71.00 м²
Продава:
| Обзавеждане: | Необзаведен |
| Строителство: | Тухлa |
| Асансьор: | Да |
| Етаж: | 12/16 |
Описание:
Код на обявата: 21672
Акцент Инвест Ви предлага ексклузивно за продажба два двустайни апартамента с възможност за обединяване в четиристаен апартамент, находящи се в емблематичната сграда Либра в Трошево, който е един от най-предпочитаните и добре развити квартали в гр. Варна, отличаващ се с отлична инфраструктура и удобна локация. Районът предлага бърз и лесен достъп до централната част на града, както и до основни пътни артерии, което го прави изключително комуникативен. В непосредствена близост се намират големи търговски обекти като Grand Mall Varna и Delta Planet Mall, които осигуряват разнообразие от магазини, заведения и услуги. Районът разполага също с множество супермаркети, аптеки, банкови офиси и всичко необходимо за комфортно ежедневие.
Трошево е изключително подходящ за семейства, благодарение на наличието на детски градини, училища и зелени площи. Градският транспорт е добре развит, с удобни автобусни линии, които свързват района с всички части на града, включително центъра и морската градина.
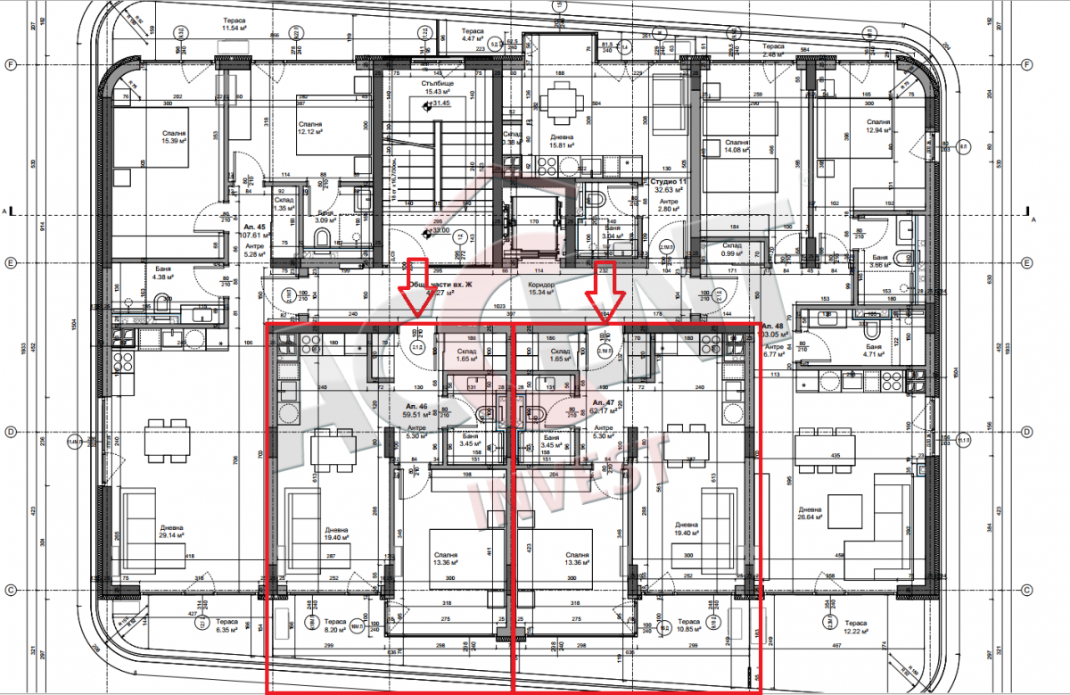
Имотите са позиционирани на етаж 12 от 16, от който се разкрива прекрасна панорама към Варненското езеро.
Апартамент 46 е с площ от 67,92 кв.м и се състои от: входно антре/ коридор, дневна с кухненска част, спалня, баня с тоалет, склад и тераса, цена: 148 000 евро.
Апартамент 47 е с площ 70,96 кв.м, състои се от: входно антре/ коридор, дневна с кухненска част, спалня, баня с тоалет, склад и тераса, цена: 152 000 евро.
Към всеки апартамент имате възможност да закупите и вътрешно паркомясто в подземния паркинг на сградата.
Апартаментите са с южно изложение, което осигурява изобилие от естествена светлина през целия ден и създава усещане за простор и уют. Това изложение е особено предпочитано, тъй като допринася за по-ниски разходи за отопление през зимните месеци и комфортен микроклимат в жилищищата.
От имотите се открива приятна панорамна гледка към града и езерото, която допълва усещането за простор и спокойствие. Благодарение на добрата ориентация, жилищатата са топли и светли, с приятна слънчева атмосфера, която ги прави изключително подходящи както за живеене, така и за инвестиция.
Апартаментите се издават в степен на завършеност по БДС, което дава възможност на новите собственици да ги завършат и обзаведат по свой вкус.
Инвеститорът е утвърдена фирма на пазара с дългогодишен опит, която се отличава с високо качество на строителство и коректност към клиента.
Контакти:

БРОКЕР ГРЕТА СТОЯНОВА
тел. +359889363536
тел. +35952611010
АКЦЕНТ ИНВЕСТ
бул. Мария Луиза 39, Варна - 9000
тел.: +359 52 61 10 10
Факс: +359 52 60 21 18
e-mail: office@accentinvest.com















