ИМОТИ
АПАРТАМЕНТИ В СТРОЕЖ РАЙОН ВМА- ЛЕВСКИ
Тип имот: Апартамент -> Две стаи
Тип имот: Апартамент -> Три стаи
Тип имот: Апартамент -> Четири или повече стаи
Код на обявата: 21583
Населено място: Градове / Варна / Левски
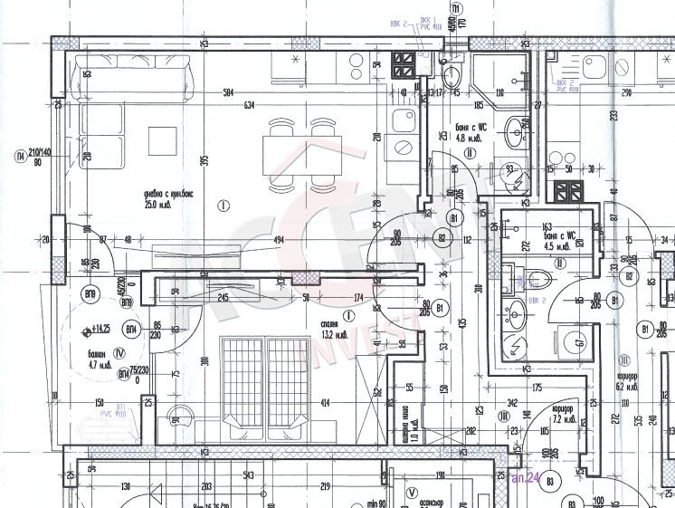
Квадратура: от 72 до 108.00 м²
Продава:
доказан строител!
| Строителство: | Тухлa, ново строителство |
| тец: | лок. отопление |
| Гараж: | Да |
| Асансьор: | Да |
| Етаж: | 3/9 |
Описание:
Акцент Инвест Ви предлага за продажба нови апартаменти в новострояща се сграда в квартал Левски, разположена от долната страна на бул. Христо Смирненски, в близост до ВМА - Варна
На разположение на живущите има подземни и надземни паркоместа, които могат да се закупят отделно на цени от 25 000 до 28 000 евро.
Планирано завършване на сградата:
Акт 14 април 2026 г. ; Акт 15 октомври 2027 г.
Въвеждане на сградата в експлоатация декември 2027 г.
Жилищата ще бъдат издадени по БДС, с контакти и ключове, окабеляване и мултисплит система за климатици. Ще бъде поставена висококачествена 5-камерна немска дограма с троен стъклопакет (KÖMMERLING или REHAU). Подовете се издават на замазка, стените на мазилка. Апартаментът разполага с входна блиндирана врата.
Сградата ще бъде снабдена с 8-местен асансьор KONE, предвижда се луксозно оформление на общите части, със скрито осветление, подови настилки гранит, декоративна мазилка и топлоизолирана фасада.
Квартал Левски е разположен североизточно от центъра на град Варна, със съседни квартали Чайка, Цветен квартал, Бриз, Изгрев и местност Сотира, с възможности за образование, здравеопазване и удобен живот в рамките на Варна. Подходящ е както за студенти, така и за семейства и инвеститори, тъй като предлага балансирана среда и стабилни възможности за отдаване под наем или закупуване на имот. На територията на квартала са разположени Военна болница, УМБАЛ Света Марина, Майчин дом, Технически университет Варна и Втори корпус на Икономически университет. В квартала има супермаркети Lidl, Kaufland, BILLA, Бурлекс, заведения за хранене, банки, аптеки, офиси на мобилни оператори и куриерски услуги, салони за красота, фитнес зали и няколко редовни автобусни линии. Наличието на няколко детски градини и училища, допринасят за доброто развитие на квартала и го превръщат в предпочитан район за младите семейства.
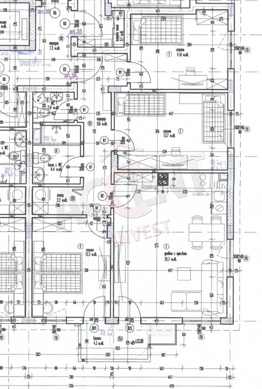
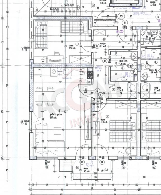
Свободни апартаментни в сградата:
|
Етаж |
Апартамент № |
тип жилище |
Квадратура обща |
Цена/Евро |
|
3 |
Aпартамент №9 |
3-стаен |
89,18 |
192 500 |
|
4 |
Aпартамент №14 |
3-стаен |
89,12 |
192 500 |
|
5 |
Aпартамент №18 |
3-стаен |
89,81 |
192 500 |
|
6 |
Aпартамент №21 |
3-стаен |
89,88 |
192 500 |
|
7 |
Aпартамент №25 |
3-стаен |
89,80 |
197 500 |
|
9 |
Aпартамент №33 |
3-стаен |
89,26 |
197 500 |
|
9 |
Aпартамент №34 |
4-стаен |
108,00 |
233 000 |
|
9 |
Aпартамент №35 |
2-стаен |
72,00 |
142 000 |
|
|
Паркоместа |
подземни |
|
28 000 |
|
|
Паркоместа |
външни |
|
25 000 |
Контакти:

БРОКЕР НИКОЛАЙ ХРИСТОВ
тел. +35952602118
тел. +35952611010
Мобилен +359882367736
АКЦЕНТ ИНВЕСТ
бул. Мария Луиза 39, Варна - 9000
тел.: +359 52 61 10 10
Факс: +359 52 60 21 18
e-mail: office@accentinvest.com















