ИМОТИ
МОДЕРНИ КЪЩИ С ТРИ СПАЛНИ В РАЙОН СВЕТИ НИКОЛА
Тип имот: Къща -> Три спални
Тип имот: Къща -> Две спални
Код на обявата: 19845
Населено място: Варна област / Свети Никола
Квадратура: от 203 до 204.00 м²
Продава:
с 2 паркоместа! Пред акт 14
| Обзавеждане: | Необзаведен |
| Строителство: | Тухлa, ново строителство |
| тец: | лок. отопление |
| Гараж: | Да |
Описание:
Акцент Инвест предлага на Вашето внимание нов, бутиков комплекс от къщи в живописната местност Свети Никола само на 3 км, от центъра на гр. Варна.
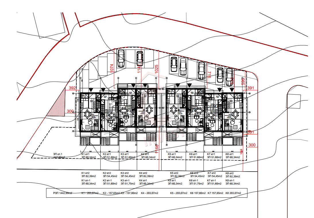
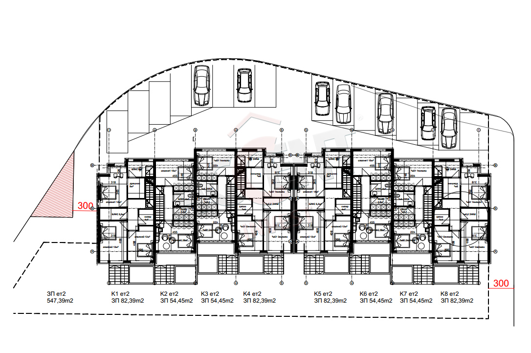
Комплексът се състои от 8 къщи със самостоятелни дворни места, които ще бъдат разположени върху парцел с големина 1708 кв.м. Къщите са проектирани за целогодишно живеене като за удобство на живущите ще бъдат изградени паркоместа, алеи и озеленяване. Предвидени са между две и три открити паркоместа в двора към всяка къща;
Инфраструктура в парцела: изградени изцяло нови канализация, водопровод и електрическо захранване.
Къщи №4 и №5
РЗП: 203,1 кв.м.
Дворно място: от 180 кв.м., паркоместа 26 кв.м.(2 броя)
Разпределение:
На ет.-1 (сутерен) с кваратура 60.70 кв. са разпределени: сервизно помещение, котелно, санитарно помещение, изба, стълбище;
На ет.1 (кота+0.00 ) с квадратура- 60.18 кв.м. функционално са разпределени: дневен тракт с кухненска част и трапезария- 52.2кв.м. , антре, стълбище и баня с тоалет.
На ет. 2 ( кота +3.00) с квадратура 82,13 кв.м. са разпределени: коридор, три спални, баня с санитарен възел, дрешник, стълбище;
Примерна схема на плащане:
Резервация - 2000 Евро;
Първа вноска - 70%;
Последна вноска след Акт 15 - 30 %.
Възможни са и други схеми на плащане (по договаряне).
Местоположението на комплекса осигурява редица удобства: атрактивна локация, чист въздух, отлична пътна инфраструктура, лесен и удобен достъп, близост до автобусна спирка на градски транспорт и хипермаркет, непосредствена близост до плажове, тишина, спокойна атмосфера и всичко това в комбинация осигурява една здравословна среда на живот!
Сред основните предимства на комплекса са:
-Ново, модерно и висококачествено строителство, което ще бъде изпълнено от доказана във времето строителна фирма.
- Атрактивна и комуникативна локация
- Великолепна гледка
Контакти:

БРОКЕР НИКОЛАЙ ХРИСТОВ
тел. +35952602118
тел. +35952611010
Мобилен +359882367736
АКЦЕНТ ИНВЕСТ
бул. Мария Луиза 39, Варна - 9000
тел.: +359 52 61 10 10
Факс: +359 52 60 21 18
e-mail: office@accentinvest.com















