ИМОТИ
НОВА КЪЩА С ЧЕТИРИ СПАЛНИ В РАЙОНА НА ТРАКАТА
Тип имот: Къща -> Четири или повече спални
Тип имот: Къща
Код на обявата: 19061
Населено място: Варна област / Траката
Квадратура: от 229 до 233.00 м²
Продава:
| Обзавеждане: | Необзаведен |
| Строителство: | Тухлa, ново строителство |
| тец: | лок. отопление |
Описание:
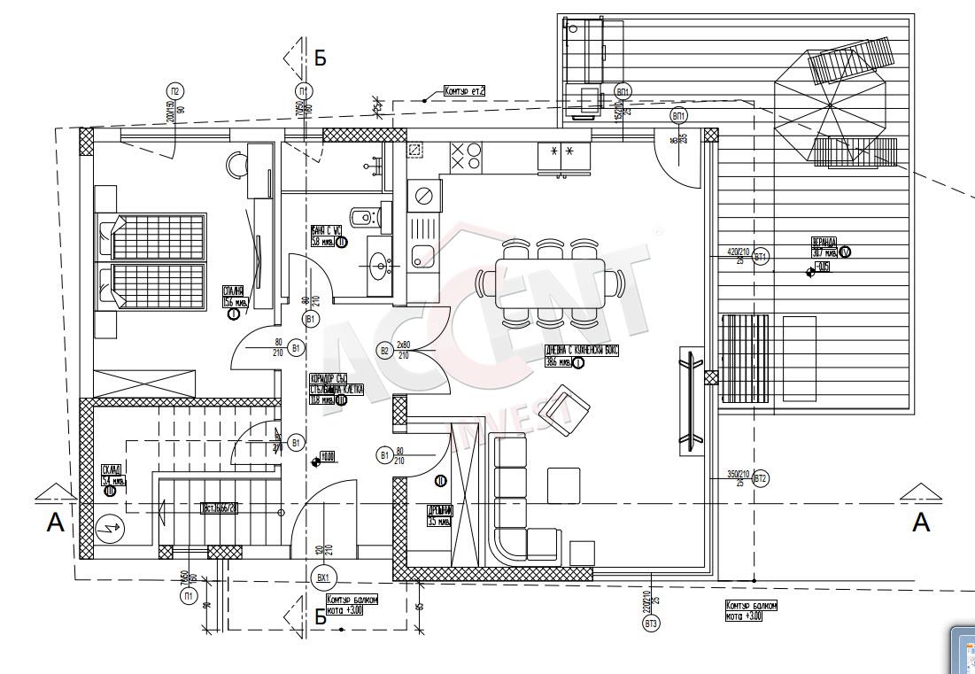
Предлагаме Ви за продажба новостроящи къщи с 4 спални в район Траката. Къщите са две съседни и ще разполагат с обща площ от по 229 и 233 кв.м. разпределена по следния начин:
Първи етаж с площ 123,00 кв.м. (кота 0,00) се състои от входно антре, голям дневен тракт разделен на кухненска зона и зона за хранене и кът за почивка, спалня, веранда 30 кв.м., санитарно помещение, вътрешно стълбище към второ ниво.
Втори етаж с площ от 110,00 кв.м. (кота 2,85) представлява коридор, 3 спални (по около 15-18 кв.м.), дрешник в една от спалните, две санитарни помещения, перално помещение, два балкона.
Централната фасада е ориентирана на юго-изток.
Къщата ще бъде завършена съгласно БДС.
Дворът е с площ 633 кв.м. и ще бъде ограден, разполага с няколко паркоместа.
Срок на завършване - 2023 г.
Инфраструктура:
Достъпа е лесен изцяло по асфалтов път. Има няколко автобусни линии, които свързват района с централната част на Варна целогодишно.
Код на обявата: 19061
Контакти:

БРОКЕР НИКОЛАЙ ХРИСТОВ
тел. +35952602118
тел. +35952611010
Мобилен +359882367736
АКЦЕНТ ИНВЕСТ
бул. Мария Луиза 39, Варна - 9000
тел.: +359 52 61 10 10
Факс: +359 52 60 21 18
e-mail: office@accentinvest.com















