ИМОТИ
МЕЗОНЕТИ В ЖК. ИЗГРЕВ
Тип имот: Апартамент -> Мезонет
Код на обявата: 21428
Населено място: Градове / Варна / Изгрев
Квадратура: от 218 до 261.00 м²
Продава:
| Обзавеждане: | Необзаведен |
| Строителство: | Тухлa |
| Асансьор: | Да |
| Етаж: | 9/11 |
Описание:
Код на обявата: 21428
Акцент Инвест предлага на Вашето внимание мезонети в новострояща се сграда в жк. Изгрев.
Състои се от общо 11 етажa, разделени на два входа, на които са разположени общо 105 апартаментa и едно ателие , и общо 110 паркоместа разположени в двор и подземен гараж. За любителите на велосипедите са предвидени и 57 велосипедни паркоместа, осигурени в специално помещение за велосипеди.
Апартаментите се предлагат завършени по БДС, като предлагаме опция за завършването им до ключ.
Сградата е разположена по начин, осигуряващ максимален фронт за благоприятно разположение на жилищата спрямо географските посоки – с преобладаващо югозападно изложение, като са предвидени и жилища с изложение югоизток.
Сградата се намира в близост:
- Комуникативен асфалтов път.
- Денонощен магазин.
- В близост училище и детска градина.
- Кучешки градинки.
- Различен вид технически салони.
- В близост супермаркет Била.
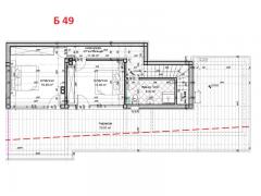
Мезонетите разполагат:
- Антре.
- Просторна дневна с кухня.
- Стълби към етаж 2 с две спални.
- Баня с тоалетна на всеки етаж.
- Големи тераси.
с цена от 1300 евро на квадрат!
Мезонет Б 49 площ 261,17 кв.м цена 339 521 евро. Етаж 9 и 10.
Мезонет Б 51 площ 218,07 кв.м цена 283 491 евро. Етаж 9 и 10.
Мезонет А 52 площ 245,02 кв.м цена 318 526 евро. Етаж 10 и 11.
Мезонет А 53 площ 247,30 кв.м цена 321 490 евро. Етаж 10 и 11.
Контакти:

БРОКЕР ВАСИЛ ВАСИЛЕВ
тел. +35952611010
тел. +35952602118
Мобилен +359886366606
e-mail: vasilev@accentinvest.com
АКЦЕНТ ИНВЕСТ
бул. Мария Луиза 39, Варна - 9000
тел.: +359 52 61 10 10
Факс: +359 52 60 21 18
e-mail: office@accentinvest.com














