ИМОТИ
ПРОСТОРЕН ТРИСТАЕН АПАРТАМЕНТ С ПРЕКРАСНА ПАНОРАМА МОРЕ В МОДЕРЕН КОМПЛЕКС В КВ. АСПАРУХОВО
Тип имот: Апартамент -> Три стаи
Тип имот: Апартамент -> Четири или повече стаи
Код на обявата: 21648
Населено място: Градове / Варна / Аспарухово
Квадратура: 124 м²
Продава:
| Обзавеждане: | Необзаведен |
| Строителство: | Тухлa, ново строителство |
| Асансьор: | Да |
| Етаж: | 8/10 |
Описание:
Код на обявата: 21648
ЕКСКЛУЗИВНО ОТ АКЦЕНТ ИНВЕСТ !!!
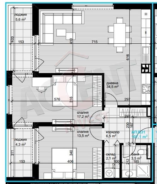
Представяме Ви просторен тристаен Апартамент Б31 с панорама море, разположен на етаж 8 (без отстъпи) от 10, с обща площ 123.98 кв.м. (107.11 м2 без общи части). Изложение: изток. Разпределение: коридор с ниша за вграден гардероб, просторна Г-образна дневна с кухня и трапезария- 34.5 кв.м. и с прекрасна панорама море, две големи спални с площ 17.2кв.м. и 13.5 кв.м. , две лоджии, баня с тоалет и склад.
Предлагаме Ви възможност да закупите апартамент в нов жилищен комплекс с Акт 14 във Варненския квартал Аспарухово. Комплекс от затворен тип Елисия Грийн се реализира на терен с площ 9 000 кв.м. и се състои от 4 сгради, с по 10 жилищни етажа. Сградите са с изчистена, съвременна архитектура и са разположени сред просторна паркова среда, гарантираща комфортна среда на живот.
Апартаментът е с отлично разпределение и спираща дъха гледка море. Към апартамента има голямо и удобно подземно паркомясто на цена 22 000 евро, отделно от цената на апартамента. Имотът ще бъде завършен по БДС.
Има възможност за обединяване със съседния ПАНОРАМЕН тристаен апартамент Б32, за повече информация натиснете ТУК
Фасада:
Високоефективна топлоизолационна система. Висококачествена силиконова мазилка, устойчива на атмосферни влияния, водоотблъскваща, с висока паропропускливост. Дограма 7-камерна, троен стъклопакет с две специални стъкла (четири сезона + бяло + К стъкло) с газ аргон. Стъклени и метални парапети.
Локация и предимства:
Комплексът се намира в юго-източната част на варненския квартал Аспарухово, на пешеходно разстояние от Парка и морето. Районът е изключително зелен и много тих и спокоен. Отлична комбинация между градски и ваканционен имот. Качествено строителство. Сигурна инвестиция.
Разстояния:
450 м до LIDLи Парк Аспарухово
500 м Автобусна спирка
900 м Плаж Аспарухово
1,4 км Яхтено Пристанище
1,4 км Мол Сити център Аспарухово
Поддръжка на общи части: Ниска такса поддръжка!
Поддръжката на жилищния комплекс ще се осъществява от професионален домоуправител, избран от общото събрание на собствениците.
Стартиране на проекта: Януари 2024г.
Срок на изпълнение: 36 месеца.
Контакти:

БРОКЕР ИВЕЛИНА ДИМИТРОВА
тел. +359884377494
e-mail: ivelina@accentinvest.com
АКЦЕНТ ИНВЕСТ
бул. Мария Луиза 39, Варна - 9000
тел.: +359 52 61 10 10
Факс: +359 52 60 21 18
e-mail: office@accentinvest.com















