ИМОТИ
НОВ ТРИСТАЕН АПАРТАМЕНТ ВЪЗРАЖДАНЕ 1
Тип имот: Апартамент -> Три стаи
Код на обявата: 21607
Населено място: Градове / Варна / Възраждане / Възраждане 1
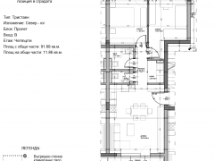
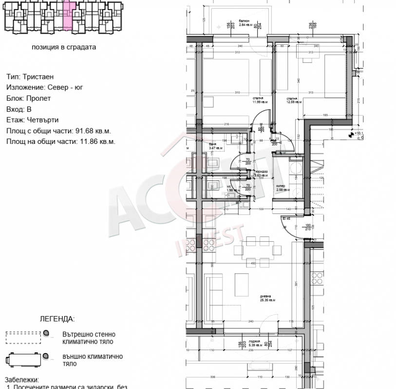
Квадратура: 92 м²
Продава:
акт 16 /ТЕЦ /Паркомясто!
| Обзавеждане: | Необзаведен |
| Строителство: | Ново строителство |
| тец: | Да |
| Асансьор: | Да |
| Етаж: | 4/6 |
Описание:
Предлагаме Ви за продажба Тристаен апартамент в нов жилищен комплекс, до Парка в кв. Възраждане, гр.Варна. Жилището е с изложение Юг-Север и се намира на 4-ти жилищен етаж (4/6). На застроена чиста площ от 80 кв.м. са разположени: входно антре/коридор, дневна с кухня, килер, баня с тоалет, тоалет, две спални, две тераси. Площ на апартамента с общи части 92,00 кв.м. Довършителни работи: БДС. Външно паркомясто включено в цената!
Комплексът се състои от 4 самостоятелни блока - Пролет, Лято, Есен и Зима в парцел от почти 10 500 кв.м. статут на АПАРТАМЕНТ!
Организацията на сградите е с отделни входове, така че във всеки вход да има по 3 апартамента на етаж.
Всички апартаменти са с благоприятно изложение. Разстоянието между блоковете в комплекса, както и между блоковете от комплекса и Орхид са по 23-24 м.
Проектът е създаден да задоволи съвременните потребности от жилище, разположено в един от кварталите на града. Екипът се е стремил да постигне оптималната жилищна площ за стандартно българско семейство, с осигурени паркоместа, без излишни разходи за поддържане на имота през годините, следващи закупуването му, с всички необходими екстри на едно модерно жилище.
Сградата е изградена с най-съвременни материали, доставени от пазарните лидери в строителния бранш с идеята всеки, който е закупил имот да почуства удобствата и комфорта на жилищната среда без шум, без влага, с ниски енергийни разходи за отопление и охлаждане, елегантни общи части, осигурен контрол на достъпа и видеонаблюдение, интериорен дизайн.
Апартаментът се предлага в степен на завършеност по БДС.
- Стени: в мокри помещения на вароциментна мазилка, в сухите на гипсова шпакловка.
- Тавани: в мокри помещения - окачени тавани от влагоустойчив гипсокартон, в сухи помещения и коридори на гипсова шпакловка и частично окачен таван.
- Подовата настилка за жилищните помещения ще е циментова замаска, за лоджии и балкони с гранитогресни плочи.
- Пожароустойчива входна врата, а дограмата ще бъде най-висок клас PVC, поне 5 камерна и стъклопакет с аргон.
- До апартаментите е изградена инсталация за интернет и домофонна система.
- Всички апартаменти са подготвени за монтаж на радиатори за парно от Veolia. Употребената топлинна енергия ще бъде измервана извън апартамента с „топломер“, което осигурява нулеви сметки при неизпозлване на системата в зимните месеци.
- Подготвена инсталация за монтаж на климатик.
- Апартаментите са снабдени с топла и студена вода. Инсталацията е изпълнена с полипропиленови тръби, напълно отделно една от друга. Студената вода е от ВиК Варна, а топлата от Veolia, като меренето на използваната вода ще се извършва чрез водомери с възможност за дистанционно отчитане. При нулева консумация на топлата вода такса не се заплаща;
Инфраструктура:
Жилищният район разполага с отлично развита инфраструктура. В непосредствена близост до сградата има хранителни магазини, ресторант, пицария, пазар, фризьорски салони, стоматологичен кабинет, фитнес, детски площадки, спортни съоръжения, две детски градини и др. В съседство се намира нов градски парк, с алеи за разходка, пейки, площадки за игра и спортни игрища. На около 5 мин. пеша (400 м.) от жилищната сграда са разположени хипермаркети Kaufland и Lidl, закрит плувен басейн и основно училище. В радиус от 1 км. - строителен хипермаркет, поликлиника, няколко средни училища, стадион, и т.н.
Удобни линии на градския транспорт (№14, 20, 22, 41, 118 (118а), 121, 148, 209, и тролеи №82, 83 и 88) свързват квартала с различни точки на града.
Акт 16 от: 2022г.
Контакти:

БРОКЕР НИКОЛАЙ ХРИСТОВ
тел. +35952602118
тел. +35952611010
Мобилен +359882367736
АКЦЕНТ ИНВЕСТ
бул. Мария Луиза 39, Варна - 9000
тел.: +359 52 61 10 10
Факс: +359 52 60 21 18
e-mail: office@accentinvest.com















