PROPERTIES
BUILDING PLOT IN VUZRAJDANE
Property type: Land -> Plots
Property ID: 3478
Location: Varna / Vuzragdane / Vuzragdane 1
Area: from 4000 to 17000.00 m²
For sale:
Description:
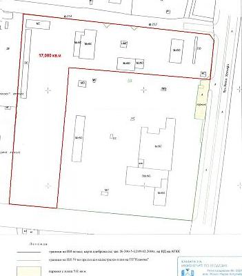
Accent Invest offers to your attention a spacious building plot of land, located in Vazrajdane 1 quarter. The plot has G-form and access to 2 roads and a main boulevard.
The total area of the property is 17000 sq.m.
The plot can be divided on smaller plots (minimum area of 4000 sq.m.). It is suitable for building of warehouses, residential buildings, showrooms etc.
Characteristics:
Coeficient of intensity - 3,5;
Planting - 30%;
Density - 60%;
Contacts:

BROKER БОЯН КАЗАНДЖИЕВ
Phone +35952611010
Phone +35952602118
Mobile +359884515133
e-mail: boian@accentinvest.com
ACCENT INVEST
Maria Luiza Blvd.39, 9000 Varna
Phone: +359 52 61 10 10
Fax: +359 52 60 21 18
e-mail: office@accentinvest.com














