PROPERTIES
APARTMENTS CLOSE TO SAINT MARINA HOSPITAL IN VARNA
Property type: Apartment -> Two rooms
Property type: Apartment -> Three rooms
Property ID: 20890
Location: Varna / Levski
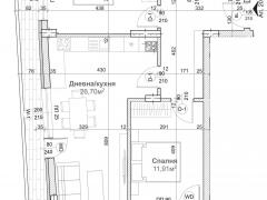
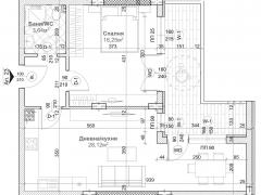
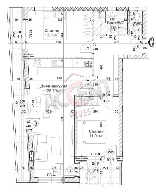
Area: from 86 to 181.00 m²
For sale:
| Furnishing: | Not furnished |
| Building: | Brick built, Newly built |
| Lift: | Yes |
| Floor: | 1/7 |
Description:
Functional apartments, with various living areas and optimized interior space.
The building combines innovation, functionality and elegant design. The location of the building offers quick and easy access to the main city arteries. Main attention is paid to the comfort and safety of the future residents. The project includes 7 above-ground and 26 underground parking spaces. The total capacity of 33 parking spaces is sensibly distributed, giving priority to easy access. For lovers of an active lifestyle, places are provided for bicycles, and fire safety is guaranteed by a special escape staircase.
On the first floor, residents will be able to choose between a two-room and a three-room apartment, the latter of which will meet the highest accessibility standards. Additional amenities, such as private basements and storage spaces within the apartments themselves, have been designed with residents' comfort in mind. The architectural appearance of the building will combine modern trends with classical elements.
The building will be copleted with reinforced concrete, beam structure, reinforced with supporting columns, beams, washers and strong reinforced concrete slabs. With this structural foundation, the residential floors will be distinguished by a height of 285 cm and 290 cm, ensuring that the clear height in each dwelling will not be less than 260 cm. Thus, each room will feel more spacious and bright.
The balcony railings, with a planned height of 1.05m from the pavement, will provide protection and comfort while allowing residents to enjoy the view. Clear glass balustrades will offer spectacular views, while attention to detail, such as stone cladding and high-quality plasterwork, will add an extra touch of style. Energy efficiency is a key priority in the construction of the building. The external enclosing walls, with a thickness of 25 cm, will be reinforced with additional thermal insulation, the thickness of which will be determined according to the special project for energy efficiency. The visual aspect of the building will be emphasized with Baumit-type exterior plaster and with back stone cladding. An additional emphasis on the elegance of the construction will be placed by the cornices made of stone, which will give the building a finished and sophisticated look. Every element of the project is chosen with care for the sustainability and durability of the building, following strict national standards.
Completion date: the beginning of 2026.
For available apartments for sale, please check the Bulgarian version of the add!
Contacts:

BROKER СВЕТЛАНА КАЗАНДЖИЕВА
Phone +35952611010
Phone +35952602118
Mobile +359888628355
e-mail: skostova@accentinvest.com
ACCENT INVEST
Maria Luiza Blvd.39, 9000 Varna
Phone: +359 52 61 10 10
Fax: +359 52 60 21 18
e-mail: office@accentinvest.com














