PROPERTIES
TWO BEDROOM APARTMENT IN APRICO
Property type: Apartment -> Three rooms
Property ID: 21666
Location: Varna / Kaisieva Gradina
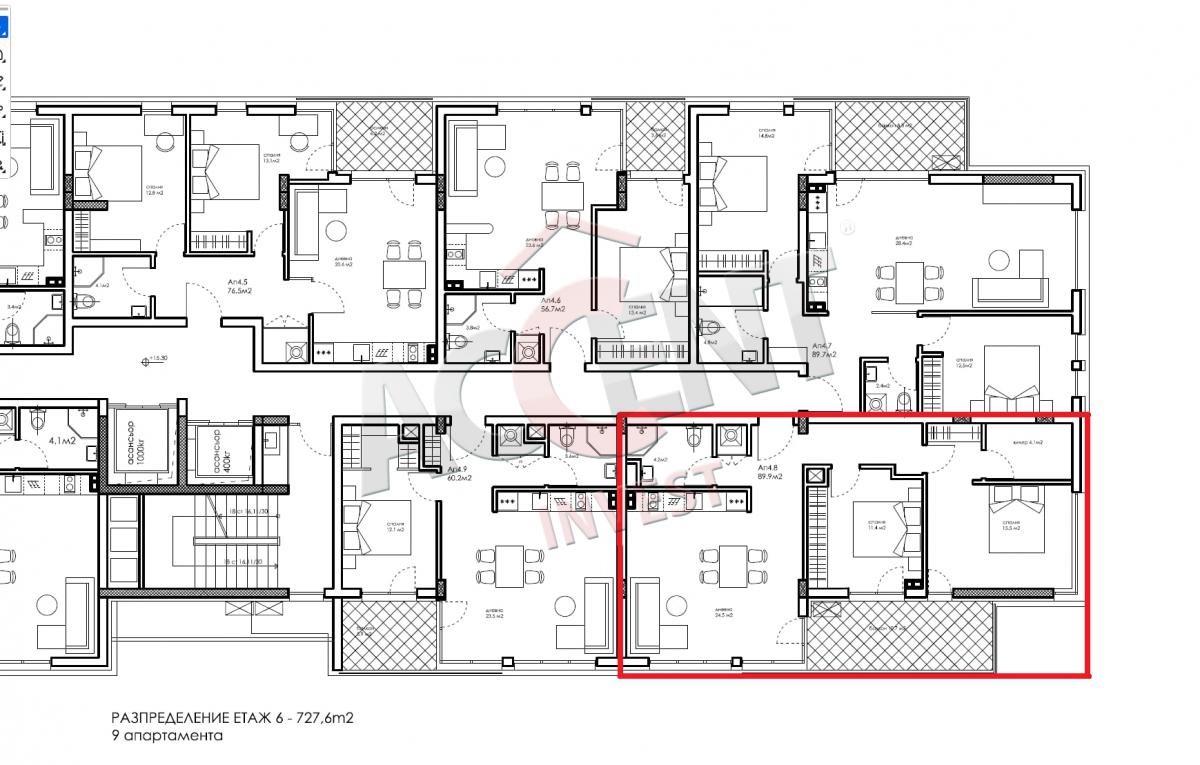
Area: 112 m²
For sale:
| Furnishing: | Not furnished |
| Building: | Newly built |
| Lift: | Yes |
| Floor: | 6/9 |
Description:
Id code: 21666
Akcent Invest offers to your attention a two bedroom apartment in Kaisieva Gradina.
A building with nine above-ground floors and two underground levels with covered parking spaces.
Three payment schemes:
1. 30%/30%/30%/10% - 162,125 euros
2. 30%/50%/20% - 166,933 euros
3. 80%/10%/10% - 153,180 euros
Distribution:
- Corridor
- Living room in kitchenette
- Two bedrooms
- Bathroom with toilet
- Laundry
- Closet
- Balcony
The apartment has a cellar/basement of 4.1 sq.m.
Exposure: Southwest
Availability of green areas along the building creating a cozy and park environment.
The building will have a modern look, HPL elements on the facade, glass railings, French windows, modern vision and a high level of detail.
Nearby:
- Bus stops
- Various types of hypermarkets
- Hairdressers and beauty salons
- Schools and kindergartens
- Boulevards Tsar Osvoboditel, Slivnitsa, 3-ti Mart
- Varna Traffic Police
- Varna Airport
- Hemus Highway
The apartment will be heated and cooled with air conditioners.
The building has two sub-zero levels for underground parking spaces
Available above-ground parking spaces
The location is suitable for both year-round living and for investment and overnight stays.
Contacts:

BROKER ВАСИЛ ВАСИЛЕВ
Phone +35952611010
Phone +35952602118
Mobile +359886366606
e-mail: vasilev@accentinvest.com
ACCENT INVEST
Maria Luiza Blvd.39, 9000 Varna
Phone: +359 52 61 10 10
Fax: +359 52 60 21 18
e-mail: office@accentinvest.com














